挿し口簡易栓鋳鉄管用
KSEN-C ・ KSEN-CS
- 適用管種:
- ダクタイル鋳鉄管
- 呼び径:
- 75~300mm
概要
水圧をかけない状態の鋳鉄管に取付ける簡易栓です。
<型式について>
・KSEN-CS:ゴムスポンジ付き
類似製品との使い分け
- 水圧がかかる部分につきましては他製品をご利用ください。
特長
- 取付けが容易
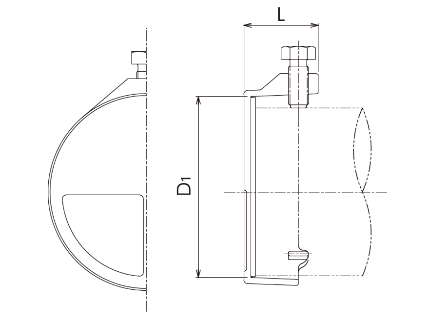
仕様
|
呼び径
|
L
|
D1
|
質量(kg)
|
|---|---|---|---|
|
75
|
75
|
102
|
1.4
|
|
100
|
75
|
129
|
1.9
|
|
150
|
75
|
182
|
2.8
|
|
200
|
75
|
236
|
4.3
|
|
250
|
75
|
289
|
5.6
|
|
300
|
85
|
342
|
9.2
|
← スクロールでご確認頂けます →
※質量は、KSEN-CSについてです。 ※KSEC-CSはゴムスポンジ付きです。



